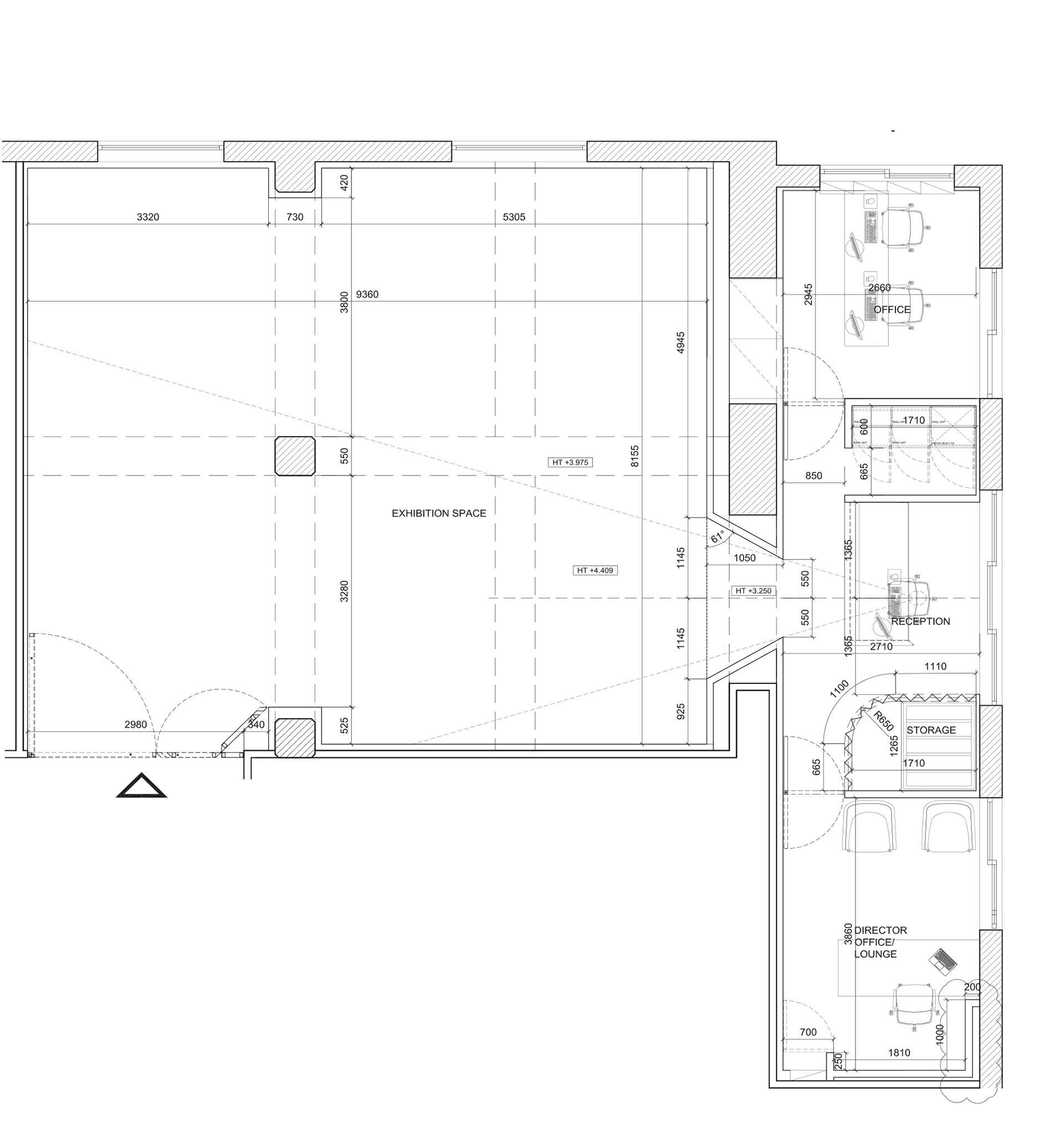
This design for a renowned Italian art gallery in Hong Kong transformed a space within the historic Pedder Building through a series of simple moves. A minimal palette places emphasis on the artworks, while bespoke furniture, storage and door installations enhance the sophistication of the space.
Back to Top